建物ボリュームチェックと基本設計

お問い合わせはこちら

木になる噺し(ブログ)

建物ボリュームチェックと基本設計

2025/12/16

建物ボリュームチェックと基本設計

建築基準法の構成について

 

建築基準法の構成は、プロトタイプの基本法があって、該当条件によってオプションが発動され制限が加算されます。

 

 例えば、法22条地域であれば、屋根不燃材が要求されます。

山の中のように指定のない場所もあります。

都会では準防火地域があり防火地域があります。

 

 プロトタイプの基本が「指定なし」であり、

該当条件のオプションは、「法22条地域」、「準防火地域」、「防火地域」と徐々に厳しめの制限が加算されます。

 

作業量は、該当条件のオプションの段階で変化し、作業量はそれによって労務費が加算され、設計費の見積が構成されています。

 そのため、概算見積を要求された時点では、該当条件が事細かに知りえている状態でなければ、粗削りな項目しか予測できません。

 

 依頼者は、該当見積を当社に要求された時点では意外とこの情報を共有され、開示することを望まない傾向があります。

現場を特定されると、予測できない情報流出を恐れての事で、情報開示を望まれないのでしょう。

 

この場合、労務量を積算して、見積書を作製することはできませんので、 

ご希望の予定の総工費がすでに定まっているとすれば、総工費×〇%で概算見積しか概算目安しか方法はありません。

 それを根拠に概算見積を計上することが唯一の概算設計見積の根拠になります。

 

建物ボリュームチェックと基本設計

 

ある案件で、設計依頼を請けました。

 

何度かズームや電話でのやり取りがあって、後に依頼者から口頭で、予定した設計料を提示されました。

それを元に設計契約の締結の意向がありました。

 

 依頼者に基本設計を始めるに際して、設計見積書を提出する事になりました。

作業項目ごとに詳細に設計に関する見積書を提示しました。

 

予算設計費の意向通りに、設計費を鑑みました。

 

しかし、詳細な現場位置や都市計画情報、施主の手元にある他設計者による建物ボリュームチェック図が当社には判明していない為、

提出した見積書の項目内容には、オプション作業が、不明でした。

 

 有無の不明な労務に関しては、計上しませんでしたが、作業項目は記載し、「別途計上」と記載はしました。

 

後に、結論から言えば、この案件からは辞退する事に決めました。

当社はよほどの理由がない場合、こちらから辞退意向は示しませんが、決めた理由を書きます。

 

 見積書を依頼者に提出後、依頼者から都市計画情報と既に他社で製作されたボリュームチェック図が提供されました。

これらを鑑みて、複数項目に関して、設計のやり直しや見積書に提示していない労務が追加になる事に関して提言しました。

 

 

近代の地籍測量図

地籍測量図について

 

地籍測量図(敷地求積図)は、大別しますと2種類あります。

 

 1つ目は、三角形で求積し、これを合計して求めた求積図です。

比較的に、昭和などの古い時代のものが多く、前時代的な測量方法で求められたものです。

 各所の距離も角度にも多く誤差が生じ、登記された地籍面積と実際の地籍面積に多くは誤差が生じます。

 

 2つ目は、近代的な測量方法は、座標で表されたもので求積されたものです。

光波測量機などで計測されており、誤差はほとんどありません。

登記するうえで、地籍測量図は土地家屋調査士や測量士の資格の元、計測された図面です。

 

この地籍測量図に記載してほしい情報はこの他にも、敷地周囲の土留めや擁壁の工作物の位置、敷地周囲や前面道路のレベル、真北測定根拠などがあります。

レベル情報や真北測定根拠などは、依頼者が測量者に要求しない限り、記載がない場合が大半です。

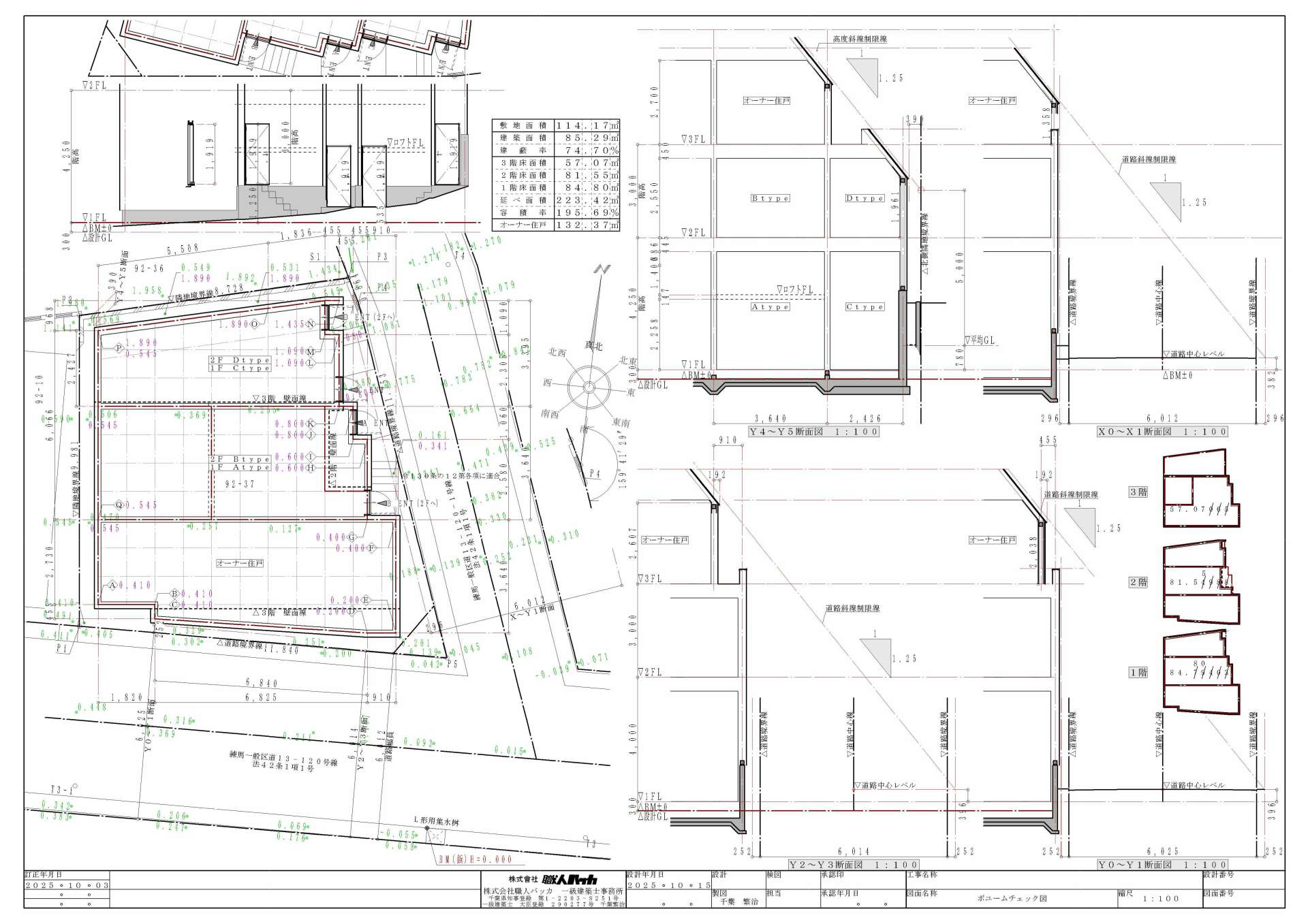
建物ボリュームチェック図

敷地求積図(地籍測量図)と建物ボリュームチェックについて

 

また、先の話の続きですが、辞任の決定的な要因の一つに集団規定を検討がありました。

依頼者は、どこかの設計者に依頼してできた「建物ボリュームチェック図」を一通り携えておりました。

 

この建物ボリュームチェック図は、敷地形状や面積から、建蔽率、容積率、道路斜線や高度斜線等の集団規定の検討します。

 どの程度の建物の形状が可能かを導き出す元となる図面です。

 

道路や隣地のレベルを元に建物の基準面となる平均GLを定め、崖条例などの都又は県条例までを検討します。

実際建物がどの程度建てられるかを検討する図面です。

 

 

つまり建物の外形を定める図で建物のボリュームを決定させる基礎的な図面です。

 集団規定は、大半が敷地形状と面積で定まります。

 

 

この敷地は敷地求積図(地籍測量図)を元に考慮しますので、重要な情報源です。

この地籍測量図が先の三角形状で算出した古い測量図の場合、誤差が生じます。

 

これを根拠に企画段階で、建物ボリュームチェックをしますと、いたるところで誤差が生じます。

 この建物ボリュームチェック図は、いたるところでアバウトな設計図になります。

シビアさが欠如したとても図面と呼べない、現実感のないただの落書きです。

 

この図を元に依頼者は、銀行との予算交渉をしていました。

光波測量機による座標での地籍測量が算定された時点でもう一度、依頼者側もイメージをリセットする必要がありました。

 

旧データで算出された容積率、建蔽率、道路斜線、高度斜線、平均GL、条例検討は、単に邪魔な結果でしかありません。

地籍測量の結果が旧測量図と新測量図で、相違がありました。

 小さくなった敷地を元に、依頼者は、旧データの容積率を要求されてきました。

 

依頼者が、どちらの専門家の方に聞かれたか不明ですが、旧測量図を基に建築確認申請ができると言われた様です。

 

仮に、建築確認申請を提出し、済証が交付されたとします。

 実際その図面を元に、工事段階で建築物が敷地からはみ出たり、配置寸法が合わないといたるところで困った状況になります。

いずれにしても、近未来で、「計画変更」を余儀なくされ、結果は明白なはずです。

 

いずれにしても、旧敷地面積を元に、実際の建物を検討する依頼がありました。

これは、設計者に対して、「違反前提の依頼」と受け、辞任を致しました。

 

 

銀行予算に縛られ、各々のオプション作業の労務費を認めず、「違反前提の依頼」でしたので、辞退を固めました。

設計契約以前でしたので、辞退できました。

 

 

当店でご利用いただける電子決済のご案内

下記よりお選びいただけます。